立面图一般是可以使用CAD的二维功能绘制出来的,所以大家也可以进行掌握。其实方法很简单的,下面由学习啦小编告诉大家如何在CAD中绘制立面图,快跟我一起来学习吧。
在CAD中绘制立面图的方法
1、这是一个平面图,现在要把电视墙的立面图画出来。

在CAD中绘制立面图步骤图1
2、把这墙体都复制出来,如下图所显示出来,在把多余的删除去。这样方便绘制。

在CAD中绘制立面图步骤图2
3、下面可以看到了删除外面的效果出来。

在CAD中绘制立面图步骤图3
4、标注可以查看长度,这里长是6280mm高是2750mm,一般高度都是2750毫米也有高一点的,可以自己决定。

在CAD中绘制立面图步骤图4
5、在画出如下图,上面的高度是150是吊顶的,下面是50是踢脚线。

在CAD中绘制立面图步骤图5
6、这里在画如3200毫米的宽度,门的高度一般是2000毫米左右。

在CAD中绘制立面图步骤图6
7、如下图可以看到了这里画出门宽度825、旁边跟着尺寸来进行来就可以了,要灵活一点,多一点少一点都是可以的。

在CAD中绘制立面图步骤图7
8、画好上面之后就可以画电视墙面了,其实电视墙面是很容易画出来的,如下图所显示出来。

在CAD中绘制立面图步骤图8
9、如下图是宽度的630。

在CAD中绘制立面图步骤图9
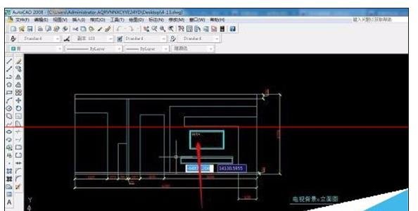
10、在把电视机的方框画出来,下面的柜台也是一样可以画出如下图,这里也是灵活一点。

在CAD中绘制立面图步骤图10
11、在标注cctv作为电视符号。

在CAD中绘制立面图步骤图11
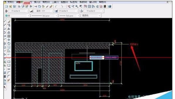
12、在按H空格键就出来图案填充,这里选择jis_rc_10,比例为5。

在CAD中绘制立面图步骤图12
13、在如下图在选择图案为cork是墙体比例为15。

在CAD中绘制立面图步骤图13
14、在输入多重引号,可以看到如下图吊顶部分。

在CAD中绘制立面图步骤图14


